PARIS – Équipement sportif Bizot
Réhabilitation d’un ancien entrepôt RATP et transformation en équipement sportif pour l’US Métro.
Missions : mission complète avec diagnostic, dépollution et désamiantage.
MO : RATP (MO déléguée RATP Real Estate)
Equipe MOE : THINK TANK architecture + BETEM ingénierie + Franck BOUTTE consultants + Acoustique VIVIE et associés + IDDEA spécialiste dépollution.
Surface : 1950 m2
Coût travaux : 3 855 000 € HT
Calendrier : lauréat mai 2016 – livraison avril 2023
PRIX AMO 2024 ” Typologie la plus créative ” – TROPHEE EIFFEL 2024 ” Divertir “







Commande initiale
Réhabilitation d’un ancien entrepôt RATP pour transformation en centre sportif pour l’USMT.
Approche
Intervention très contextuelle qui valorise l’existant. Conception passive et travail sur le confort d’usage.
Proposition
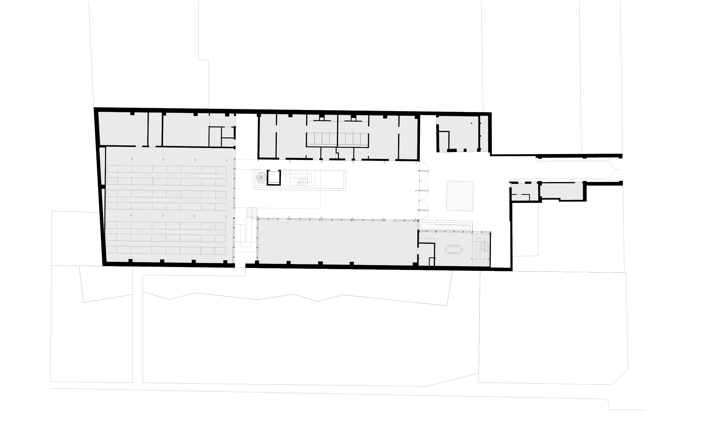
Le projet est une opération de réhabilitation lourde valorisant les qualités architecturales et urbaines du site : gabarit enveloppe avec des volumes généreux, charpentes bois, intériorité du site, lien entre les différents bâtiments, rappel du passé industriel et appartenance à l’histoire de la RATP.
L’ensemble se compose d’une halle principale et de deux annexes encadrant la cour. La façade Est de la halle est la seule façade avec des ouvertures. Celles-ci sont agrandies de façon à amener de la lumière naturelle dans les espaces intérieurs, à mettre en scène les pratiques sportives et à permettre une ventilation naturelle des espaces intérieurs. La façade reçoit un bardage industriel ondulé translucide ou en métal.
La cour est requalifiée. Le bâtiment côté Nord, dédié à la technique, est ravalé. Le bâtiment côté Sud, reconstruit dans le gabarit de l’existant, est dédié à l’administration des associations sportives avec un espace réunion et un espace bureaux. La façade rideau s’inscrit dans la continuité des espaces sportifs, et le volume est recouvert de bardage métallique.
La halle principale abrite les espaces sportifs sur deux niveaux, organisés autour d’un atrium fonctionnant comme une serre tempérée. Ce généreux jardin d’hiver toute hauteur sert à la régulation thermique et à l’apport de lumière naturelle des pièces en fond de parcelle. Lumineux et arboré, il est à la fois :
– Un espace de circulation qui dessert les principaux espaces et l’étage.
– Un espace de convivialité, avec des zones de détente d’où l’on peut profiter de vues cadrées sur les différents sports.
– Un espace de pratique sportive ponctuelle pour des disciplines le yoga ou le taï-chi.
– Un espace événementiel qui peut être utilisé par le maître d’ouvrage.
Ce jardin d’hiver est donc un véritable espace polyvalent, en lien avec les salles du rez-de-chaussée et la cour. Il est la signature du projet et lui donne son ambiance particulière avec ce paysage intérieur abrité par la majestueuse charpente. De plus, il fonctionne comme une serre tempérée. La façade peut être largement ouverte en été, pour amener de l’air et rafraîchir les lieux. Enfin, à l’étage, le jardin d’hiver est bordé de passerelles offrant de nombreuses vues vers les plantes ou vers le ciel à travers la charpente.
Une bande côté Nord accueille les vestiaires et les locaux supports (vestiaires, sanitaires, LT).
Les circulations verticales sont situées dans l’atrium. Elles animent cet espace par leur traitement volumétrique simple et par la multitude des points offerts au visiteur. De plus, elles sont accompagnées d’un grand podium formant à la fois socle, gradins, scène. Il s’étire dans la longueur et délimite ainsi la zone centrale et les circulations d’accès aux vestiaires et aux sanitaires.
Les espaces sportifs sont organisés autour du vide central: haltérophilie, préparation physique et salle d’armes au rez-de-chaussée et boxe, espace polyvalent et dojo à l’étage. Ils sont ouverts sur le jardin d’hiver, constituant des fonds de scène et permettant un repérage aisé dans le bâtiment.